物件詳細

戸建て延岡市|緑ヶ丘

おすすめイラスト

物件のポイント

緑ヶ丘の落ち着いた住宅街に位置する、家族でのびのび暮らせる住まいで、
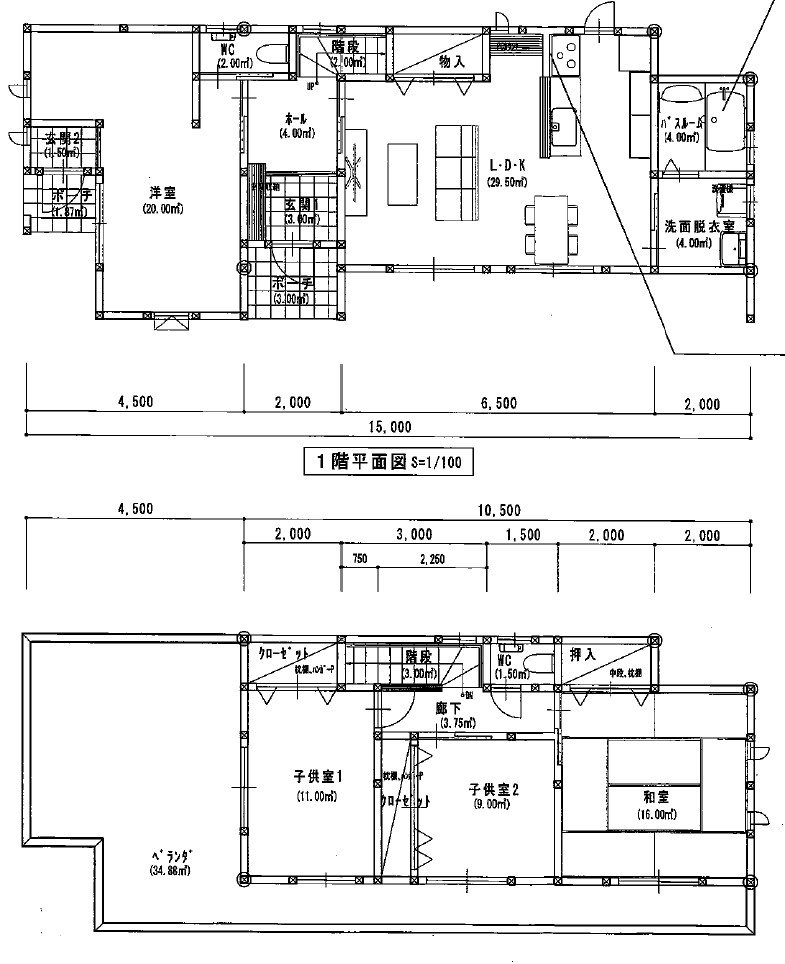
2階には子供部屋2室+和室を備えており、お子さまの成長やライフスタイルの変化に合わせて柔軟に使い分けができます。

広々としたバルコニーは、洗濯物や布団干しはもちろん、ちょっと一息つけるプライベート空間できます!

  • 物件番号

    090043

  • 取引状況

    販売中

  • 所在地

    宮崎県延岡市緑ヶ丘2丁目

  • 価格

    3,480万円

  • 間取り

    3LDK+店舗

  • 築年数

    平成29年6月

  • 土地面積

    210.6㎡(63.70坪)

  • 建物面積

    122.5㎡(37.05坪)

  • 構造

  • 小学校

    緑ヶ丘小学校

  • 用途地域

    第二種中高層住居専用地域

  • 建ぺい率

    60%

  • 容積率

    200%

  • 設備

    オール電化

  • 駐車場

    あり 4台

  • 排水

    公共下水

  • 取引形態

    仲介

  • 備考

  • 更新日

    2026年1月20日

  • 次回更新予定日

    2026年2月3日