物件詳細

戸建て日向市|財光寺往還

おすすめイラスト

物件のポイント

利便性の高いエリアに新築住宅が登場! 生活に便利な立地と新築ならではの快適さが魅力の一棟です!

  • 物件番号

    090014

  • 取引状況

    販売中

  • 所在地

    日向市大字財光寺4110番1

  • 価格

    1,900万円

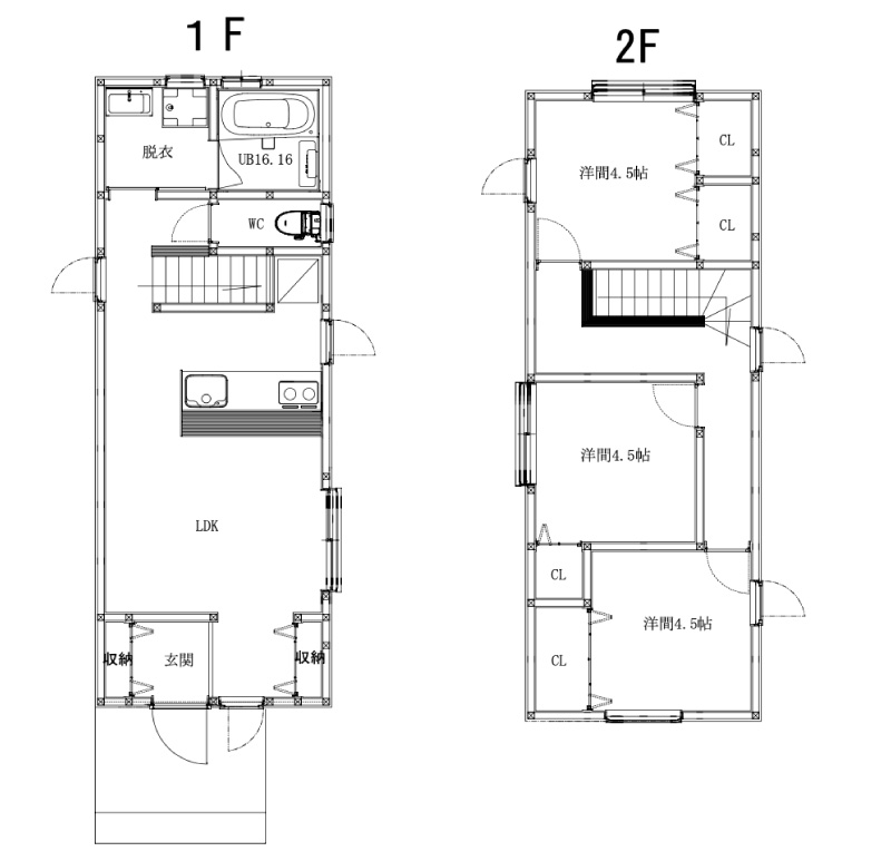
  • 間取り

    3LDK

  • 築年数

    令和6年3月新築

  • 土地面積

    114.95㎡(34.77坪)

  • 建物面積

    72.86㎡(22.03坪)

  • 構造

  • 小学校

    財光寺小学校

  • 用途地域

    第一種低層住居専用地域

  • 建ぺい率

    50%

  • 容積率

    100%

  • 設備

  • 駐車場

    あり

  • 排水

    合併浄化槽

  • 取引形態

    仲介

  • 備考

  • 更新日

    2025年12月27日

  • 次回更新予定日

    2026年1月10日