物件詳細

戸建て日向市|美々津

おすすめイラスト

物件のポイント

家庭菜園やガーデニングにも適した広々とした敷地。自然に囲まれながら、ゆったりとした時間を過ごせます。海抜約40mに位置し、水害リスクの低い立地です。
なお、本物件は土砂災害警戒区域に該当しておりますので、詳細についてはハザードマップ等をご確認ください。

  • 物件番号

    090012

  • 取引状況

    販売中

  • 所在地

    日向市美々津町字田久保523番地3

  • 価格

    2,400万円

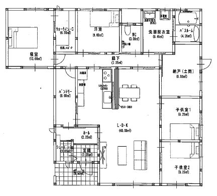
  • 間取り

    4LDK+2S

  • 築年数

    平成29年2月16日新築

  • 土地面積

    433.96㎡(131.26坪)

  • 建物面積

    131㎡(39.62坪)

  • 構造

    木造合金メッキ鋼板ぶき平家建

  • 小学校

    寺迫小学校

  • 用途地域

    都市計画区域外

  • 建ぺい率

  • 容積率

  • 設備

    オール電化

  • 駐車場

    あり

  • 排水

    合併浄化槽

  • 取引形態

    仲介(専属専任)

  • 備考

    海抜40m以上

  • 更新日

    2026年2月28日

  • 次回更新予定日

    2026年3月14日