物件詳細

戸建て日向市|浜町

おすすめイラスト

物件のポイント

地震に強い2×4工法の築浅未入居物件です!※展示家具付き

  • 物件番号

    090006

  • 取引状況

    販売中

  • 所在地

    日向市浜町2丁目

  • 価格

    2,900万円

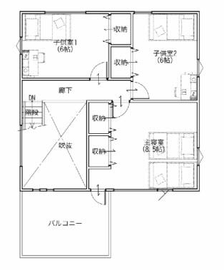
  • 間取り

    4LDK

  • 築年数

    令和6年8月

  • 土地面積

    212.26㎡(64.20坪)

  • 建物面積

    108.47㎡(32.81坪)

  • 構造

    木造合金メッキ鋼板ぶき2階建

  • 小学校

    日知屋東小学校

  • 用途地域

    第一種住居地域

  • 建ぺい率

    60%

  • 容積率

    200%

  • 設備

    オール電化

  • 駐車場

    あり

  • 排水

    公共下水

  • 取引形態

    仲介

  • 備考

  • 更新日

    2025年12月27日

  • 次回更新予定日

    2026年1月10日